В Калуге ищут подрядчика для благоустройства набережной Оки за 113 миллионов рублей
В среду, 20 октября, министерство конкурентной политики Калужской области объявило открытый конкурс по поиску подрядчика для благоустройства набережной на левом берегу Оки. Начальная стоимость контракта – 113 миллионов рублей. Заявки будут приниматься до 15 ноября. А сама набережная должна быть построена до 1 августа 2022 года.
В проектной документации содержится концепция благоустройства набережной, которой должен будет руководствоваться подрядчик. Этот документ разрабатывало управление архитектуры Калуги, которое возглавляет Алексей Комов.
Благоустроить набережную планируется на участке от Гагаринского моста до понтонного моста на Воробьевской переправе.



Набережная будет разделена на три части: верхний променад, нижний променад и пляжную зону.

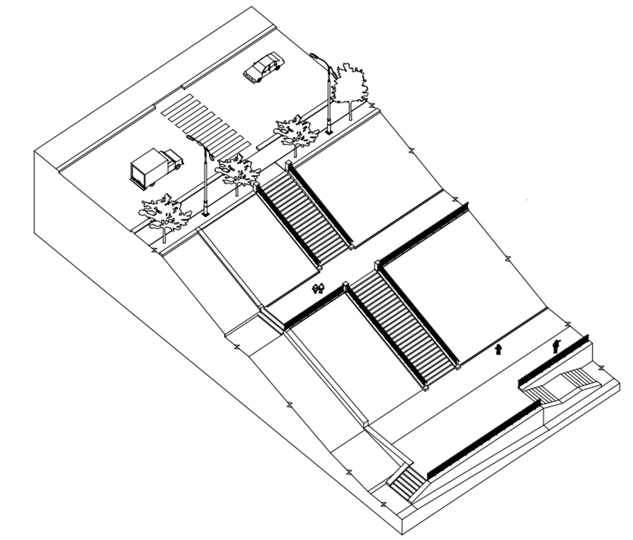
На улице Набережной предполагается организовать новые пешеходные переходы, а также парковку вдоль дороги со стороны Набережной. Еще одна парковка появится на пустыре напротив парка культуры и отдыха.
На нижнем ярусе променада подрядчик должен соорудить смотровые площадки с деревянными настилами.
Также планируется воссоздать лестницу с улицы Набережной в Центральный парк культуры и отдыха. Сейчас на этом месте лишь протоптанная дорожка.
Площадь верхнего яруса составит 2770 квадратных метров, нижнего – 4855, длина леерного ограждения – 2500 метров.

На верхнем ярусе планируется устроить пешеходную дорожку из асфальта, на нижнем – пешеходную и велосипедную дорожку. При этом трасса для велосипедистов будет выделена другим цветом.
Также на набережной должны появится лавочки, велопарковки и места для принятия солнечных ванн.
