В Калуге закроют проезд по Воскресенскому переулку
Водителей просят выбирать пути объезда.
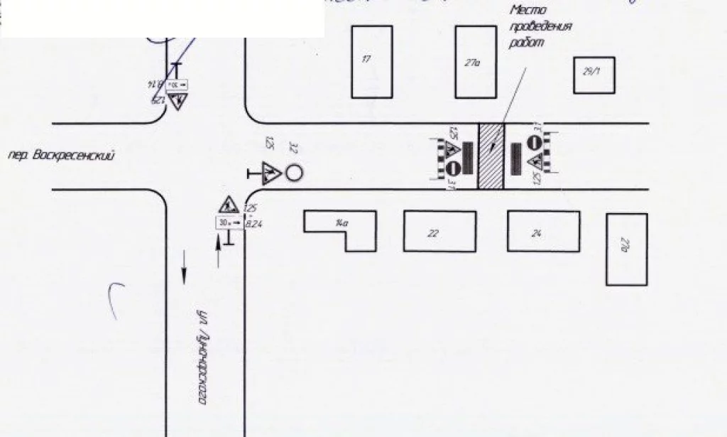
Рядом с домами №22 и №27а по Воскресенскому переулку в Калуге закроют проезд в среду, 10 июня.
Проехать там нельзя будет с 21:00 10 июня до 7:00 11 июня в связи с работами «Калугатеплосети», предупреждает городская управа.
Водителей просят заранее выбирать пути объезда.
Чтобы оставлять комментарии
Авторизуйтесь
