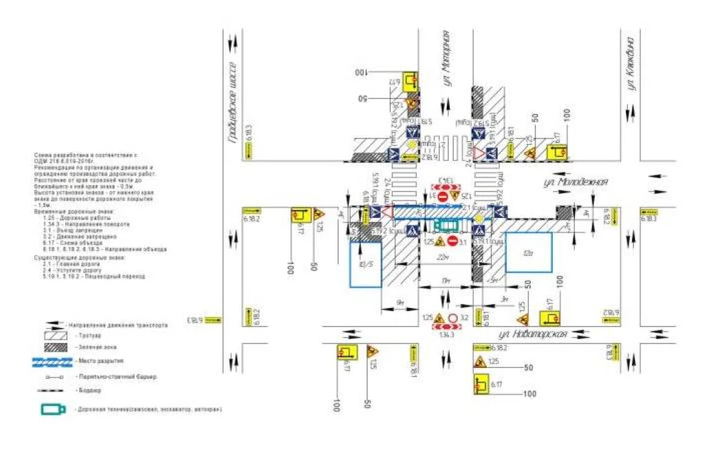
В Калуге перекроют улицу Моторную
Проезд в районе перекрестка с Молодёжной будет закрыт с 22:00 21 сентября до 6:00 22 сентября, сообщили в управлении городского хозяйства.
Это связано с работами на теплосетях.
Ранее, напомним, сообщалось, что улицу Молодёжную на участке от Моторной до Грабцевского шоссе перекрыли на 15 дней – с 18 сентября до 2 октября.
Чтобы оставлять комментарии
Авторизуйтесь
