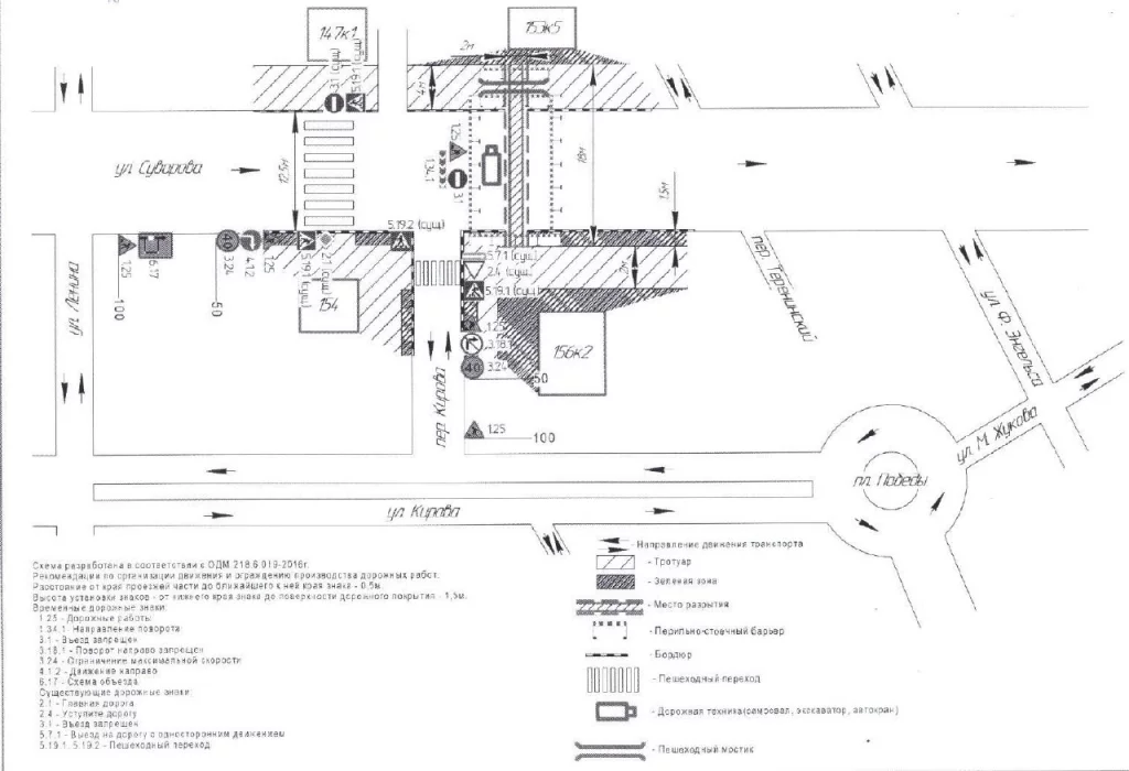
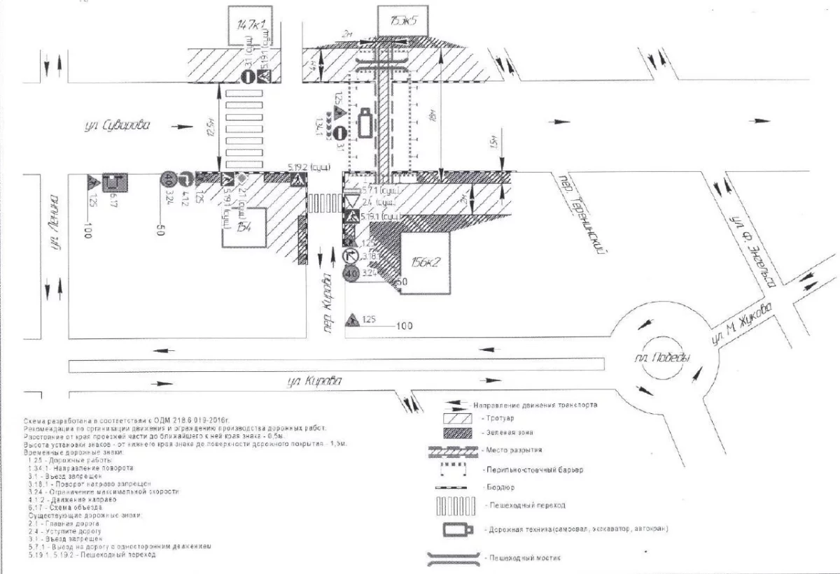
В Калуге полностью перекроют улицу Суворова
Теплосеть запланировала ремонтные работы.
Вечером в среду, 14 июня, в Калуге полностью перекроют проезд по улице Суворова на участке между переулками Кирова и Теренинским. Об этом сообщили в городской управе.
В 21:00 «Калугатеплосеть» начнет аварийные работы в районе дома №156 к.2.
Проехать по Суворова нельзя будет до 7:00 четверга, 15 июня.
Водителей просят выбирать пути объезда заранее.
Партнёрские новости
Чтобы оставлять комментарии
Авторизуйтесь
