В Калуге полностью перекроют улицу Жукова
Ремонтные работы пройдут в ночь на 9 сентября.
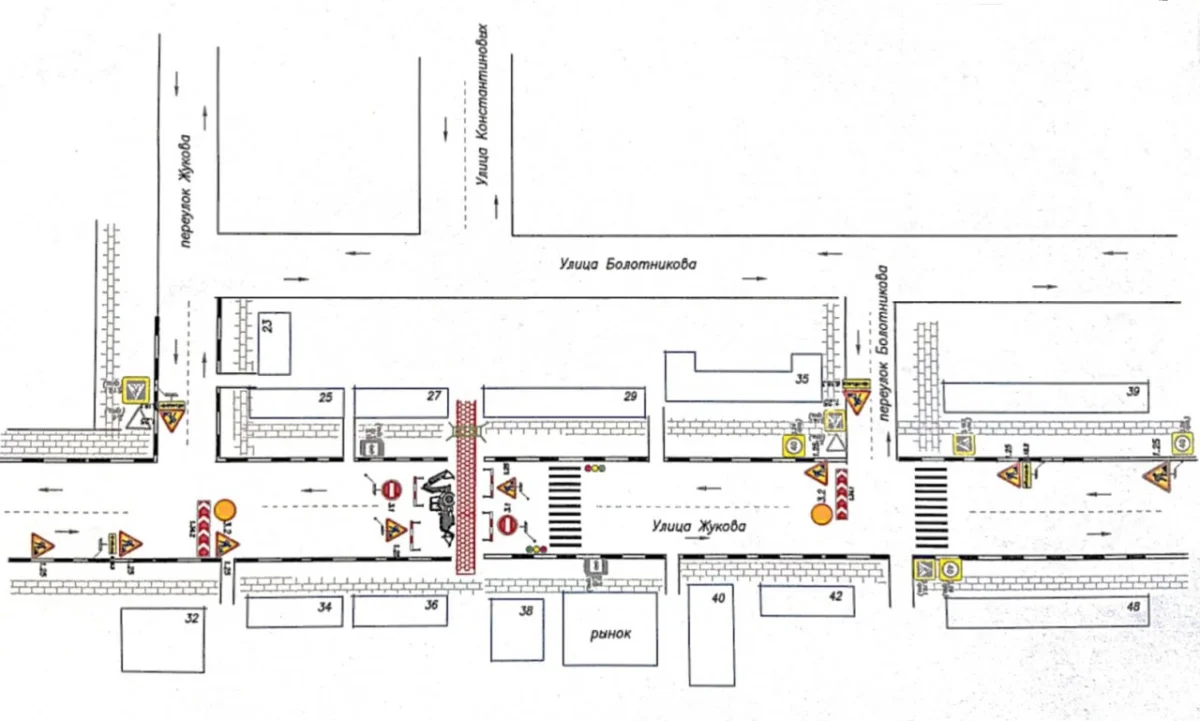
С 23:00 8 сентября до 6:00 9 сентября в Калуге нельзя будет проехать по улице Жукова в районе дома №27. Это связано с аварийными работами на теплосетях, сообщили в городской управе.
Движение будет перекрыто в районе мини-рынка.
Объехать этот участок калужане смогут по улице Болотникова и переулкам Жукова и Болотникова.
Чтобы оставлять комментарии
Авторизуйтесь
